ID00942
Terreno Residencial Condomínio Saint Patrick
Valor Venda: R$ 557.000,00
Condominio: R$ 612,00
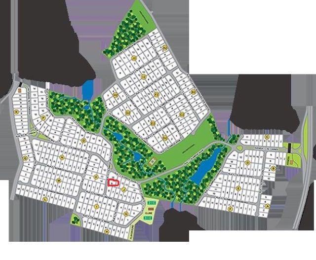
- Descrição: Conforme no mapa, o terreno tem uma ótima localização ,privilegiada, fica próximo da área verde, não é muro , com uma testada maior que o padrão do condomínio, 27 metros.
- Ver região no Google Maps
| Área Construida: 0 m² | Área Terreno: 1014 m² |
| Cidade: Sorocaba | Bairro: Residencial Saint Patrick |
Entre em Contato
WhatsApp: (15) 98132-0247
E-mail: contato@maralimaimoveis.net.br
As informações de área construída, medidas do terreno, descrição e valores dos imóveis anunciados foram fornecidos e autorizados pelos proprietários. Os valores aqui anunciados deverão ser confirmados em nossa central de atendimento, tendo em vista que poderão estar sujeitos a ajustes sem aviso prévio.